Vendesi in Scalea (Cs), località Petrosa terreno agricolo ed edificabile

  • 70.000€
Via Egidio Covello, Scaletta, La Petrosa, Scalea, Cosenza, Calabria, 87029, Italia
Vendesi in Scalea (Cs), località Petrosa terreno agricolo ed edificabile
Via Egidio Covello, Scaletta, La Petrosa, Scalea, Cosenza, Calabria, 87029, Italia
  • 70.000€

Panoramica

Descrizione

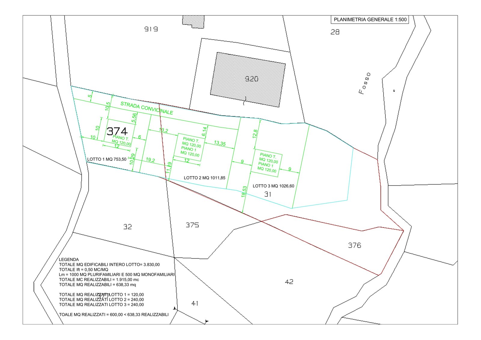
Vendesi in Scalea, in località Petrosa (contrada Grieco), terreno agricolo ed edificabile di mq totali pari a 4900. Nello specifico i mq edificabili realizzabili sono pari a 3830, l’indice fondiario è pari a 0,50 mc/mq. I mq realizzabili dunque sono 638.

Soluzione ideale, non solo per la realizzazione di immobili ad uso abitativo, ma idonea anche a qualsivoglia progetto inerente la ristorazione,il benessere e/o qualsiasi altra attività di natura turistica. Disponibilità immediata e prezzo trattabile.

  • Indirizzo Contrada Grieco
  • Codice Postale 87029

Dettagli

Aggiornato il Novembre 8, 2025 at 8:59 am
  • Prezzo: 70.000€
  • Dimensioni Terreno: 4800

Calcolatore Mutuo

Mensile
  • Acconto
  • Loan Amount
  • Monthly Mortgage Payment
  • Tasse Proprietà
  • Assicurazione sulla casa
  • PMI
  • Monthly HOA Fees
%
%
%
%

Prenota un Tour

Le tue informazioni

Cosa c'è nelle vicinanze?

Si prega di fornire la propria chiave API Clicca qui

Informazioni di contatto

Visualizza gli Annunci
Elena Parlato
  • Elena Parlato

Richiedi più informazioni su questa proprietà

0 Recensione

Ordina per:
Lascia una recensione

Lascia una recensione

Annunci simili

Confronta Strutture

Confronta
Elena Parlato
  • Elena Parlato